ANLEITUNG FÜR SEGELBOOT-BIMINI TOP
Wie die Messungen für den Heck-Bimini vornehmen
Die Segelboot-Bimini sind so konzipiert, dass sie im Steuerhausbereich Schatten spenden. Sie werden normalerweise mit speziellem Befestigungszubehör auf der Heckkanzel montiert. Der Rahmen besteht aus Edelstahlrohr und kann je nach Länge, 2 oder 3 Bögen haben. Das Tuch aus Acrylgewebe ist bei Bedarf mit einem Durchgang für Einzel oder Doppelt Achterstag versehen. In diesem Handbuch wird erläutert, wie Sie die für die Realisierung erforderlichen Mäße ausführen.


Messen die Breite zwischen die Kanzel Mittelpunkt bis die andere Kanzel Mittelpunkt wie Abbildung


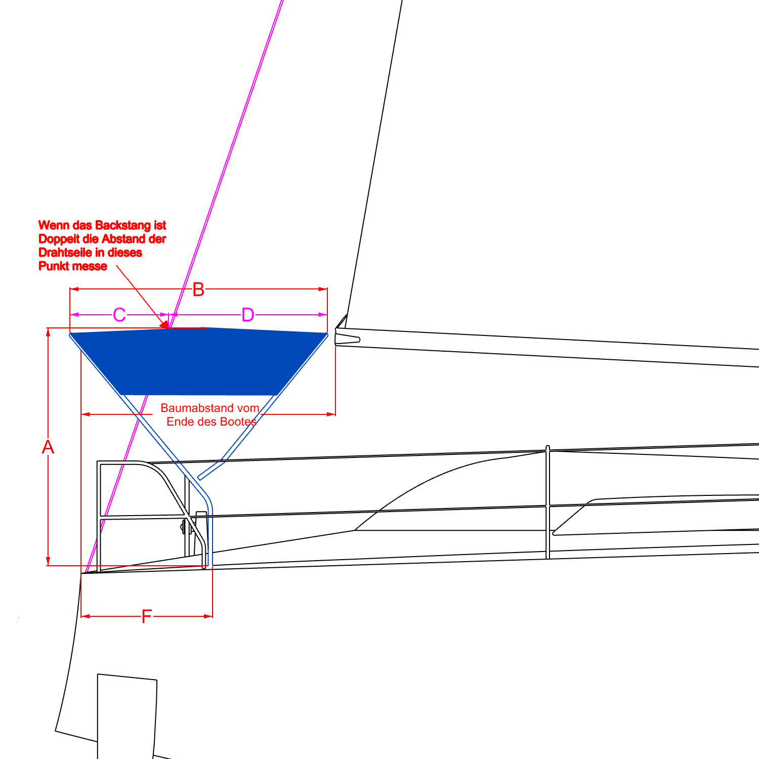
Nehmen die Abmessungen wie Abbildung
A: HÖHE DES BIMINI TOPS
B: LÄNGE DES BIMINI TOPS
C: ABSTAND ZWISCHEN DEM BACKSTAG UND DEM ENDE DES BIMINI TOPS NACH DAS HECK
D: ABSTAND ZWISCHEN DEM BACKSTAG UND DEM ENDE DES BIMINI TOPS NACH DER BUG
E: HÖHE KANZEL
F: ABSTAND VOM HECK BIS ZUM ENDE DER KANZEL
Wie ermitteln die Messungen für Bimini am Heck mit Bodeninstallation
Die Segelboot-Bimini sind so konzipiert, dass sie im Steuerhausbereich Schatten spenden.
Sie werden normalerweise mit speziellem Befestigungszubehör auf der Heckkanzel montiert. Bei sehr kurzen Kanzeln ist eine Bodenmontage vorzuziehen.
Der Rahmen besteht aus Edelstahlrohr und kann je nach Länge, 2, 3 oder 4 Bögen haben. Das Tuch aus Acrylgewebe ist bei Bedarf mit einem Durchgang für Einzel oder Doppelt Achterstag versehen.
In diesem Handbuch wird erläutert, wie Sie die für die Realisierung erforderlichen Mäße ausführen.


Messen die Breite zwischen die Kanzel Mittelpunkt bis die andere Kanzel Mittelpunkt wie Abbildung


Nehmen die Abmessungen wie Abbildung
A: HÖHE DES BIMINI TOPS
B: LÄNGE DES BIMINI TOPS
C: ABSTAND ZWISCHEN DEM BACKSTAG UND DEM ENDE DES BIMINI TOPS NACH DAS HECK
D: ABSTAND ZWISCHEN DEM BACKSTAG UND DEM ENDE DES BIMINI TOPS NACH DER BUG
F: ABSTAND VOM HECK BIS ZUM ENDE DER KANZEL